设为首页|加入收藏

2025年HUW工法说明书(第八版)

2025-04-18    点击次数:194

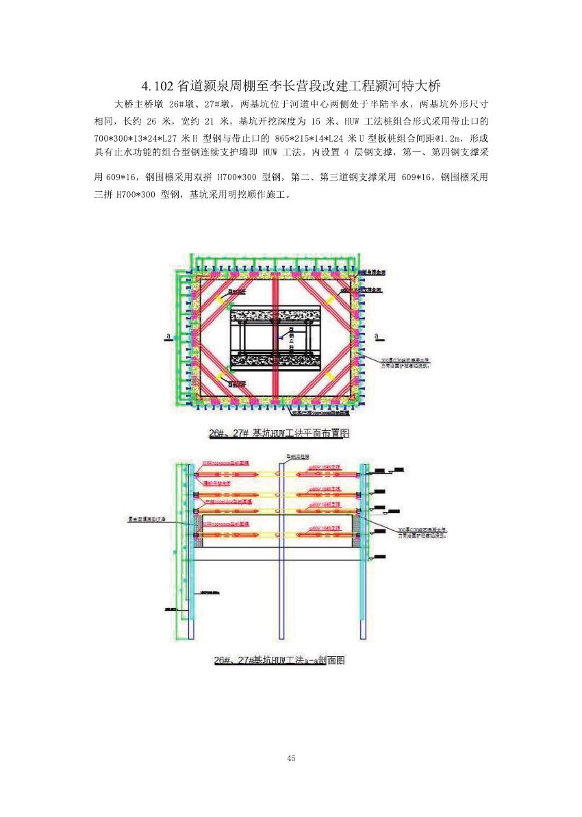
(第八版)2025年HUW工法说明书-回传(5)(1)(3)0000.jpg(第八版)2025年HUW工法说明书-回传(5)(1)(3)0001.jpg(第八版)2025年HUW工法说明书-回传(5)(1)(3)0002.jpg(第八版)2025年HUW工法说明书-回传(5)(1)(3)0003.jpg(第八版)2025年HUW工法说明书-回传(5)(1)(3)0004.jpg(第八版)2025年HUW工法说明书-回传(5)(1)(3)0005.jpg(第八版)2025年HUW工法说明书-回传(5)(1)(3)0006.jpg(第八版)2025年HUW工法说明书-回传(5)(1)(3)0007.jpg9.jpg10.jpg11.jpg12.jpg13.jpg14.jpg15.jpg16.jpg17.jpg18.jpg19.jpg20.jpg21.jpg22.jpg23.jpg24.jpg25.jpg26.jpg27.jpg28.jpg29.jpg30.jpg31.jpg32.jpg33.jpg34.jpg35.jpg36.jpg37.jpg38.jpg39.jpg40.jpg41.jpg42.jpg43.jpg44.jpg45.jpg46.jpg47.jpg48.jpg49.jpg50.jpg51.jpg52.jpg53.jpg54.jpg55.jpg56.jpg57.jpg58.jpg59.jpg60.jpg61.jpg62.jpg63.jpg64.jpg65.jpg66.jpg67.jpg68.jpg69.jpg70.jpg71.jpg72.jpg73.jpg74.jpg75.jpg76.jpg77.jpg78.jpg79.jpg